No Chain. Delightful extended vastly improved and refurbished traditional bay fronted villa terraced house of character. Sought after and convenient tree lined road within walking distance of the town centre, the crescent, local schools, Leisure Centre, Queens Park, bus and train stations, dentist, bars and restaurants, doctors and good access to major road links. Immaculately presented with flair including original stripped pine panelled interior doors, wooden/quarry tiled flooring, coving, feature open Victorian fireplaces, refitted kitchen and bathroom, gas central heating and UPVC SUDG. Spacious accommodation offers canopy porch, lounge and open plan living dining kitchen. Two double bedrooms and bathroom with roll top bath and walk in shower. Front and good sized sunny rear garden with shed. Viewing highly recommended. Carpets, blinds and range cooker included.
Freehold
Council Tax Band A
EPC Rating D
Open canopy porch. Attractive original panelled front door to
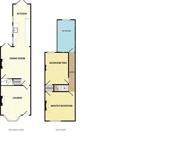
with feature fully working Victorian open fireplace having ornamental white wooden surrounds, raised granite black hearth, ornamental black cast iron fireplace with floral tiles. Fitted electric meter cupboard to side alcove. Original strip pine flooring. Coving to ceiling. Radiator. Inset ceiling spotlights. TV aerial point. Built in window seat with storage cupboards beneath housing the gas meters. Power points and light switches in the house are in brushed metal. Original stripped pine panelled interior doors to
with original quarry tiled flooring with log store. Door to deep under stairs storage cupboard with fitted shelving and lighting.
L-shaped with feature Victorian fireplace having ornamental pine surrounds, ceramic tiled hearth, black ornamental cast iron fireplace. Original quarry tiled flooring. Radiator. Inset ceiling spotlights. UPVC SUDG French doors to rear garden from the dining area. Door and stairway to first floor. Feature archway to fitted kitchen to rear with a range of gloss grey fitted kitchen units consisting inset Belfast sink unit, chrome mixer tap above and drawer beneath. Further matching range of floor mounted cupboard units and three drawer unit. Solid oak working surfaces above. Tiled splashbacks. One tall larder unit. Stainless steel chimney extractor hood. Breakfast bar. Appliance recess points. Plumbing for automatic washing machine and dishwasher. Kenwood Range cooker included with a six ring stainless steel gas hob unit, two ovens and grills with a warming drawer beneath. Stainless steel chimney extractor hood. Double panelled radiator. Original quarry tiled and oak strip flooring. Inset ceiling spotlights. Gas cooker point. Wall mounted display shelving and clothes dryer. Inset speakers in the ceiling. UPVC SUDG French doors leading from the breakfast area to the rear garden.
with inset ceiling spotlights.
with feature Victorian fireplace having ornamental pine surrounds, black ornamental cast iron fireplace with quarry tiled hearth. Laminate wood strip flooring. Dressing table to side alcove, drawers beneath. Single panelled radiator. Door to built in wardrobe over the stairs. Loft access, partially boarded.
with feature Victorian white cast iron fireplace. Radiator. Built in wardrobe over the stairs.
with white suite consisting freestanding roll top cast iron bath with claw feet. Tiled walk in shower with glazed shower screen, rain shower above. Pedestal wash hand basin. Low level WC. Contrasting travertine tiled surrounds. Further storage cupboards and display shelving, one concealing the gas condensing combination boiler for central heating and domestic hot water. Oak strip flooring. Chrome heated towel rail. Inset ceiling spotlights.
The property is set back from the road screened behind a low retaining wall with a paved front forecourt. There is a shared covered side entry leading to the fully fenced and enclosed west facing rear garden which has a sunny aspect with the sun rising at the front of the house and setting in the garden. There is a deep full width timber decking patio with surrounding railway sleepers. There is a surrounding pergola with solar lighting. The garden is principally laid to lawn with surrounding beds and borders. To the top of the garden there is a jasmine archway leading to a further stoned area with two timber sheds., the largest has light and power. Adjacent to the rear of the house is a timber dustbin store. Outside security light and tap.
No Chain
Freehold
Terraced Property
Two Bedrooms
Council Tax Band A
EPC Rating D
Nicely Presented
Please complete with as much detail as possible and we'll promptly reply to book your viewing of this property.
Whilst we endeavour to make our property details accurate and reliable, if there is any point which is of particular importance to you, please contact the office and we will be pleased to check the information for you. We must also stress that the agent has not tested any apparatus, equipment, fitting or services and so cannot verify they are in working order. The buyer is advised to obtain verification from their solicitor or surveyor.